Úvodní stránka » Fotogalerie » PRŮMYSLOVÉ DRTIČE ODPADU RED GOAT commercial

PRŮMYSLOVÉ DRTIČE ODPADU RED GOAT commercial

Red Goat commercial
cenik-RED-GOAT--MODEL-A-SERIE-DRTIC-TABULKA.png
new-somat-logo-black.png
literature-icon.png
redgoat-tab-logo-light.png
spinaci-skrin-reverzni-chod-prumyslovy-drtic-odpadu-bond.jpg
RED-GOAT -MODEL-A-SERIE-DRTIC-ZAKLAD-TABULKA.png
Red-Goat-Site-Main-Logo.png
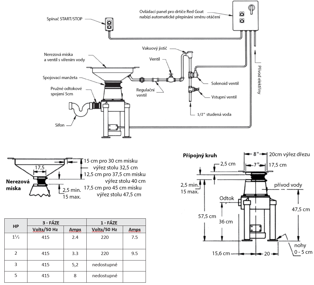
rozmery-schema-drtice-odpadu-prumyslovy-red-goat-model-f.png
map-icon.png
Disposer-C10P-R-viewFT-253x300.jpg
cenik-RED-GOAT--MODEL-F-SERIE-DRTIC-TABULKA.png
red-goat-F-model-prumyslovy-drtic-odpadu-bond.jpg
cenik-pripojne-sady-RED-GOAT--MODEL.png
RED-GOAT--MODEL-F-SERIE-DRTIC-TABULKA.png
logo_BOND_drtice.gif
redgoat-title-bar-background.jpg
logo.png
pripojne-sady-adapter-hrdla-drtice-odpadu-prumyslovy-red-goat.pn
service-icon.png
drez-miska-adapter-prumyslovy-drtic-odpadu-bond.jpg
ITW_FEG_logo.png
red-goat-B-model-prumyslovy-drtic-odpadu-bond.jpg
pripojne-sady-red-goat-drtice-odpadu-drezova-miskova.png
Red-Goat_logo.png
nerezovy-pracovni-stul-prumyslovy-drtic-odpadu-bond.jpg
master-disposer-logo.png
footer-logo.png
rozmery-schema-drtice-odpadu-prumyslovy-red-goat-model-a.png
stero-logo-80x80.png
logo_black.png
stero-tab-logo-dark.png
stero-tab-logo-dark2.png
somat80x80.png
logo-bond-sede-poz.png
logo_waste_king.png
red-goat-C-model-prumyslovy-drtic-odpadu-bond.jpg
zpět

  • Úvod
  • Novinky
  • E-shop - Katalog výrobků 2025
  • Drtiče Bone Crusher®
  • Poloprofi drtiče Bone Crush®
  • PROFI Drtiče RED GOAT®
  • PROFI Waste King Commercial
  • Servis a podpora
  • Soubory ke stažení
  • Vliv na životní prostředí
  • Obchodní podmínky
  • Kontakt, tradice, informace

Jazykové verze:       

Pracovní doba
kanceláře a
skladu
po-pá, 8:00 - 14:00 hod.
platí od 7.1.2025

 

DRTIČ BOND je silně návykový

 

 

Facebook přidejte si nás

Facebook 


BOND drtiče (@drtice_bond)
• Instagram

Oblíbené odkazy

  • Asociace dovozců drtičů
  • Kontaktní formulář
  • Drtiče RED GOAT
  • Poloprofi drtiče Bone Crush®
Úvodní stránka|Tisk

Copyright © 2025 DRTIČE BOND Výhradní dovozce, velkoobchod, maloobchod, servis, podpora. | Mapa webu |

Využíváme soubory cookies

Kliknutím na Přijmout cookies dáváte souhlas s uložením vybraných cookies (nutné, preferenční, výkonnostní, marketingové). Cookies používáme pro lepší fungování našeho webu, měření jeho výkonnosti a cílení a personalizaci reklam. To jaké cookies budou uloženy, můžete svobodně rozhodnout pod tlačítkem Upravit nastavení.
Prohlášení o cookies.

Využíváme soubory cookies a další technologie pro lepší uživatelský zážitek na webu. Následující kategorie můžete povolit či zakázat a svůj výběr uložit.

Tyto cookies jsou nezbytné pro zajištění základní funkčnosti webových stránek.

Preferenční cookies slouží pro zapamatování nastavení vašich preferencí pro příští návštěvu.

Výkonnostní cookies monitorují výkon celého webu.

Marketingové a reklamní cookies se využívají k měření a analýze webu.